Free Beam Detailing AutoCAD DWG for Practice & Professional Use
Beam detailing DWG AutoCAD file is one of the most essential parts of structural engineering, especially when working with reinforced concrete structures. A well-prepared detailing drawing ensures that the design is properly executed on-site without confusion or error. If you are searching for a reliable source to Download Detailing AutoCAD File, this guide will help you understand everything about beam detailing and how to use a detailing DWG AutoCAD file effectively.
What is Beam Detailing?
Beam detailing refers to the preparation of detailed structural drawings that show how reinforcement bars are placed inside a beam. These drawings include information about top and bottom reinforcement, stirrup spacing, anchorage length, lap splices, and cross-sectional details. Proper beam detailing is crucial because it directly affects the strength, durability, and safety of a structure. Without accurate detailing, even a well-designed structure can fail during execution.
Why You Should Download Beam Detailing AutoCAD File
Using a ready-made Beam Detailing AutoCAD File can significantly improve your workflow. Instead of starting from scratch, you can use a professional detailing AutoCAD file (DWG) as a reference or template. This not only saves time but also helps you understand standard detailing practices used in real projects. Many students and engineers search online for terms like Download Detailing AutoCAD File or Beam Detailing DWG AutoCAD File because these resources provide practical exposure beyond textbooks.
What is Included in a Beam Detailing DWG File?
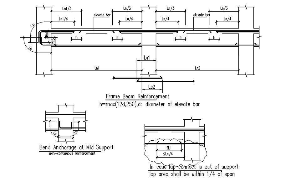
A typical detailing DWG AutoCAD file for beams contains multiple drawing components that are essential for construction. It usually includes a beam layout showing the position of beams in plan view, a longitudinal section that illustrates reinforcement distribution along the length, and cross-sectional details that define beam dimensions and rebar placement. Additionally, many files also include a bar bending schedule (BBS), which helps in estimating material quantities and guiding fabrication.

How to Use the Downloaded Detailing AutoCAD File
Once you download a detailing AutoCAD file, the next step is to use it effectively. Open the file in AutoCAD and first check the units used in the drawing. Then review different layers such as reinforcement, dimensions, and annotations. You can modify the drawing according to your project requirements by adjusting beam sizes, reinforcement details, and spacing. This process is especially useful for students who want to practice and for professionals who want to speed up their drafting work.
Who Should Use Beam Detailing AutoCAD Files?
Beam detailing DWG files are useful for a wide range of users. Civil engineering students can use them to understand practical detailing concepts, while structural engineers can use them as a base template for real projects. Draftsmen and CAD designers also benefit from these files by improving their drawing accuracy and efficiency. If you are involved in teaching or creating engineering content, these files can also be used as high-quality learning materials.

Important Tips for Beam Detailing
While using any Beam Detailing AutoCAD File, it is important to follow standard engineering practices. Always ensure that the detailing complies with relevant design codes such as BNBC 2020 or ACI 318. Maintain proper concrete cover, provide correct stirrup spacing especially near supports, and avoid congestion of reinforcement bars. Additionally, always verify bar bending schedules to ensure accurate quantity estimation and avoid material wastage.
Download Beam Detailing AutoCAD File (DWG)
If you are looking for a high-quality Download Detailing AutoCAD File, make sure the file includes all essential components such as plan, section, reinforcement details, and BBS. A good Beam Detailing DWG AutoCAD File should be clean, properly layered, and easy to edit so that you can directly use it in your academic or professional work.
Final Thoughts
A well-prepared Beam Detailing AutoCAD File is not just a drawingโit is a complete guide for construction. Whether you are a beginner learning the basics or a professional working on real projects, having access to a reliable detailing DWG AutoCAD file can improve both your understanding and productivity. By using and practicing with these files, you can develop strong detailing skills that are essential for any structural engineer.
๐ Want to learn more?
This article is brought to you by qLearnify โ your complete platform for engineering courses and resources.
๐ Explore courses & tools: https://qlearnify.com